Neubau Kinderheim und Alterswohnungen Pilgerbrunnen, Zürich

Auftrag: letzte Runde Projektwettbewerb

Bauherrschaft: Evangelischer Frauenverbund, Zürich

Aufgabe: Kinderheim mit Kita und 38 Wohnungen

Leistungen: Generalplaner und Architektur

Bearbeitungszeit: 2021

Mitarbeit: Jasna Struckelj Gmür, Martino Romani, Kathrin Simmen

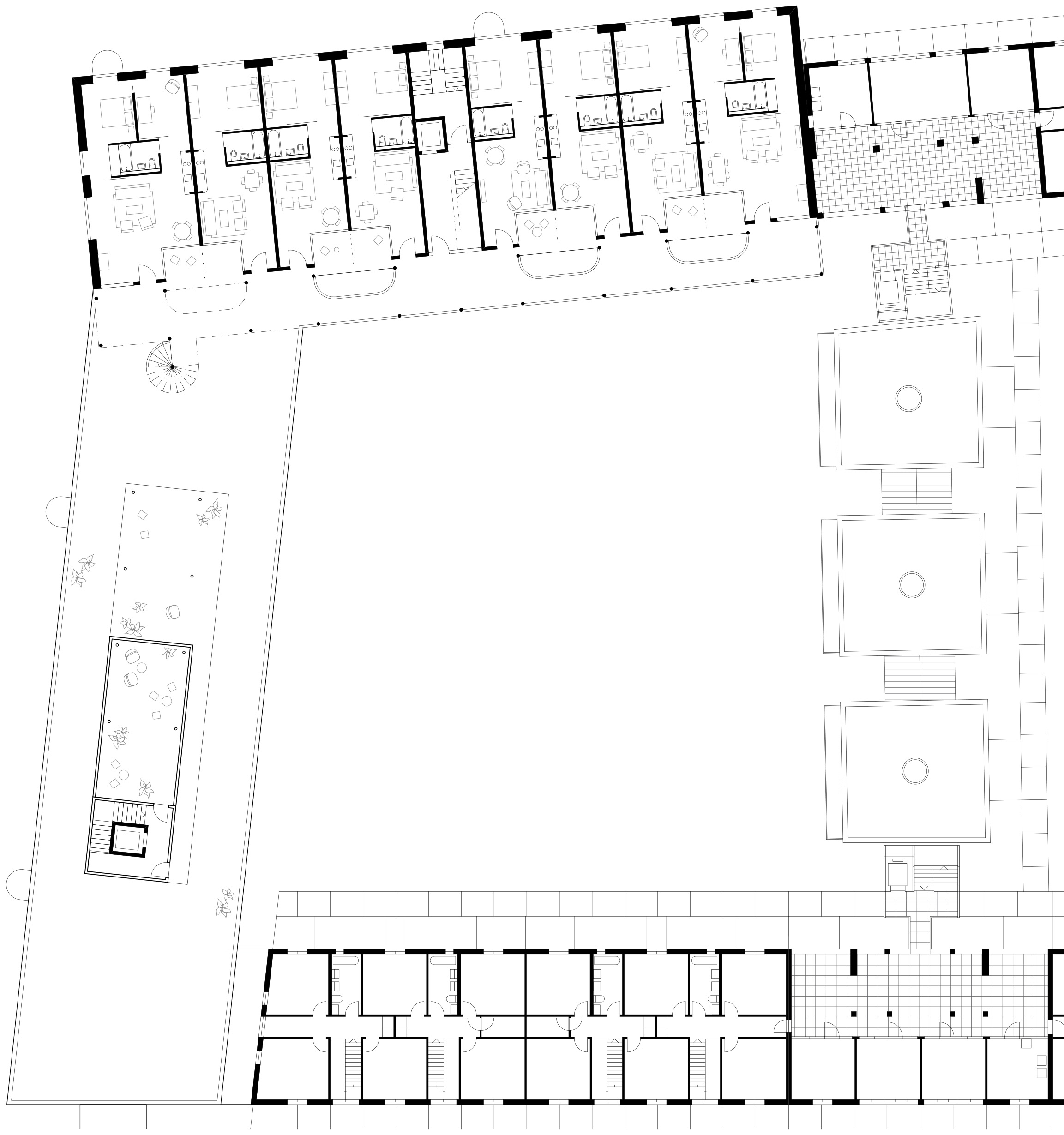
Dreiklang hoher Baukörper

Das Volumen des Neubaus schliesst dreiseitig den Blockrand der bestehenden Siedlung Brahmshof von Kuhn, Fischer und Hungerbühler AG aus dem Jahr 1991und formt um einen identitätsstiftenden Baum einen geschlossenen Hof. Unterbrochen durch die zweigeschossigen Volumina von Atelierhäusern ist dieser das Pendent zum Hof der Brahmshofsiedlung. Der Blockrand wird an der nordöstlichen Längsseite durch einen 8-geschossigen Körper volumetrisch akzentuiert. Zusammen mit dem Schlotterbeckareal entsteht ein Dreiklang hoher Baukörper.

Wohnliche Atmosphäre durch Massstäblichkeit der Volumetrie, Materialität und Formensprache

Für die Kinder des Kinderheims aus den unteren 4 Geschossen, die im Hof spielen, bleibt die Welt draussen durch die Fuge Richtung Heiligfeldpark, die sichtbare Silhouette des beider Schlotterbeckhochbauten und viel Himmel erlebbar. Räumliche Begrenzung, Geborgenheit und Rückgrat ist dagegen der Riegel mit den Wohnungen, dessen in den Hof auskragende Laubengangschicht die Gewichtung und Trennung der Nutzungen verdeutlicht.

Ein vielfältiger Lebensraum vom Nebeneinander und Gemeinschaft

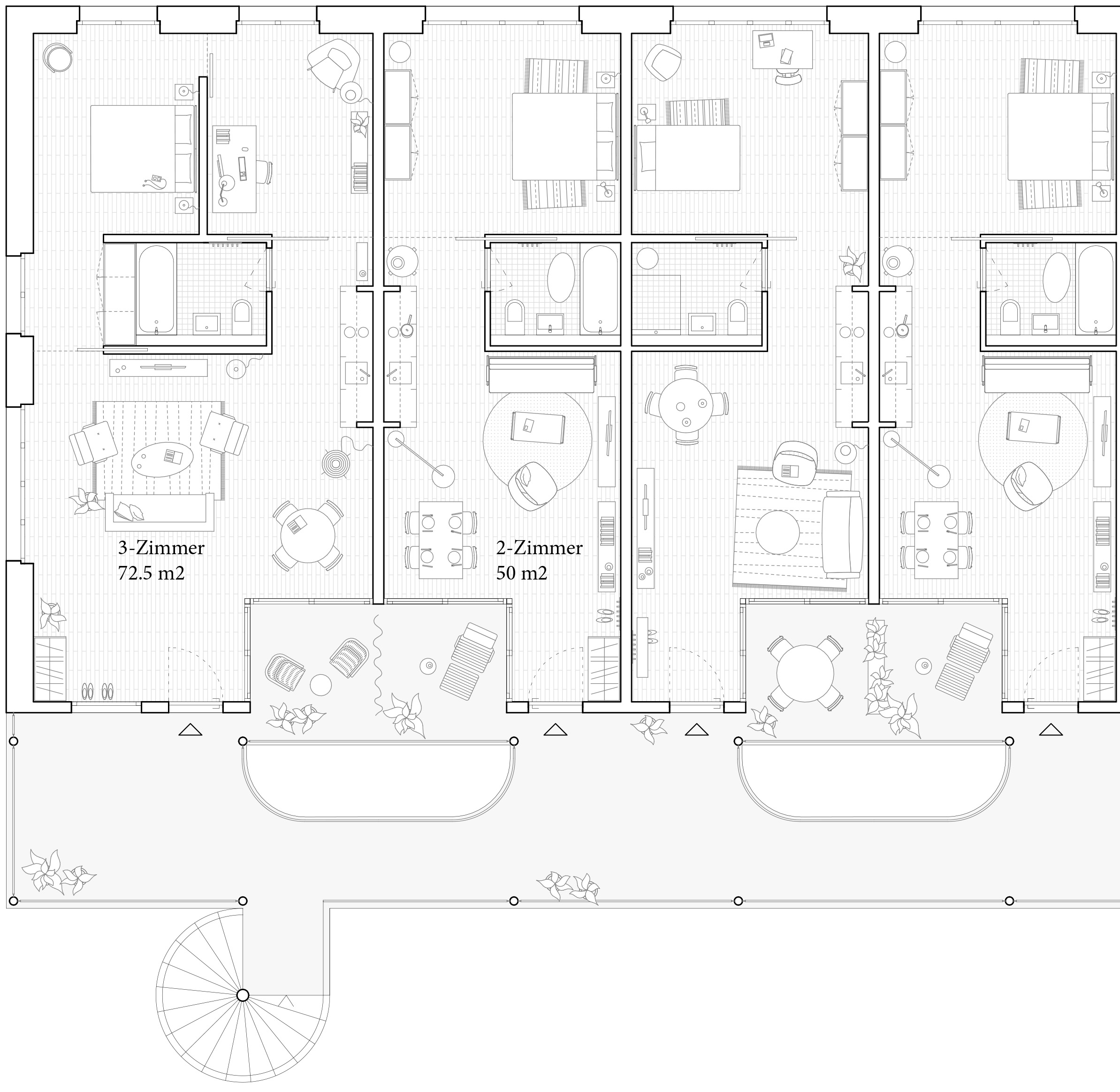
Die Kleinwohnungen werden vom mittigen Treppenhaus über einen Laubengang erschlossen. Am Treppenhaus sind auch die gemeinschaftlichen Waschküchen pro Geschoss angeordnet. Ausschnitte in der Bodenplatte ermöglichen geschossübergreifende, diagonale Blickbezüge und bringen Licht in Balkone und dahinter liegende Wohnräume. Ein schmaler Durchschlupf zwischen den Loggiabalkonen und dem Laubengang fördert die spontane, soziale Interaktion der Bewohner im Aussenraum, ohne eine fremde Wohnung betreten zu müssen.
Von der südwest-orientierten Laube hat man einen fantastischen Weitblick zum Friedhof Sihlfeld und dem Hügelzug des Üetlibergs.

Für eine grösstmögliche Nutzungsflexibilität ist die Tragkonstruktion mehrheitlich in Skelettbauweise mit vorfabrizierten Stützen und Ortbetonflachdecken konzipiert. Das Energiekonzept mit Anschluss an das Fernwärmenetz erlaubt eine nachhaltige, CO2-neutrale Wärmeversorgung. Die gewählte Konstruktionsweise aus ökologischen Materialien mit ausreichend Dämmung der Gebäudehülle und das vorgeschlagene Haustechnikkonzept erfüllten den Minergiestandard.

Projektbeschrieb PDF→