
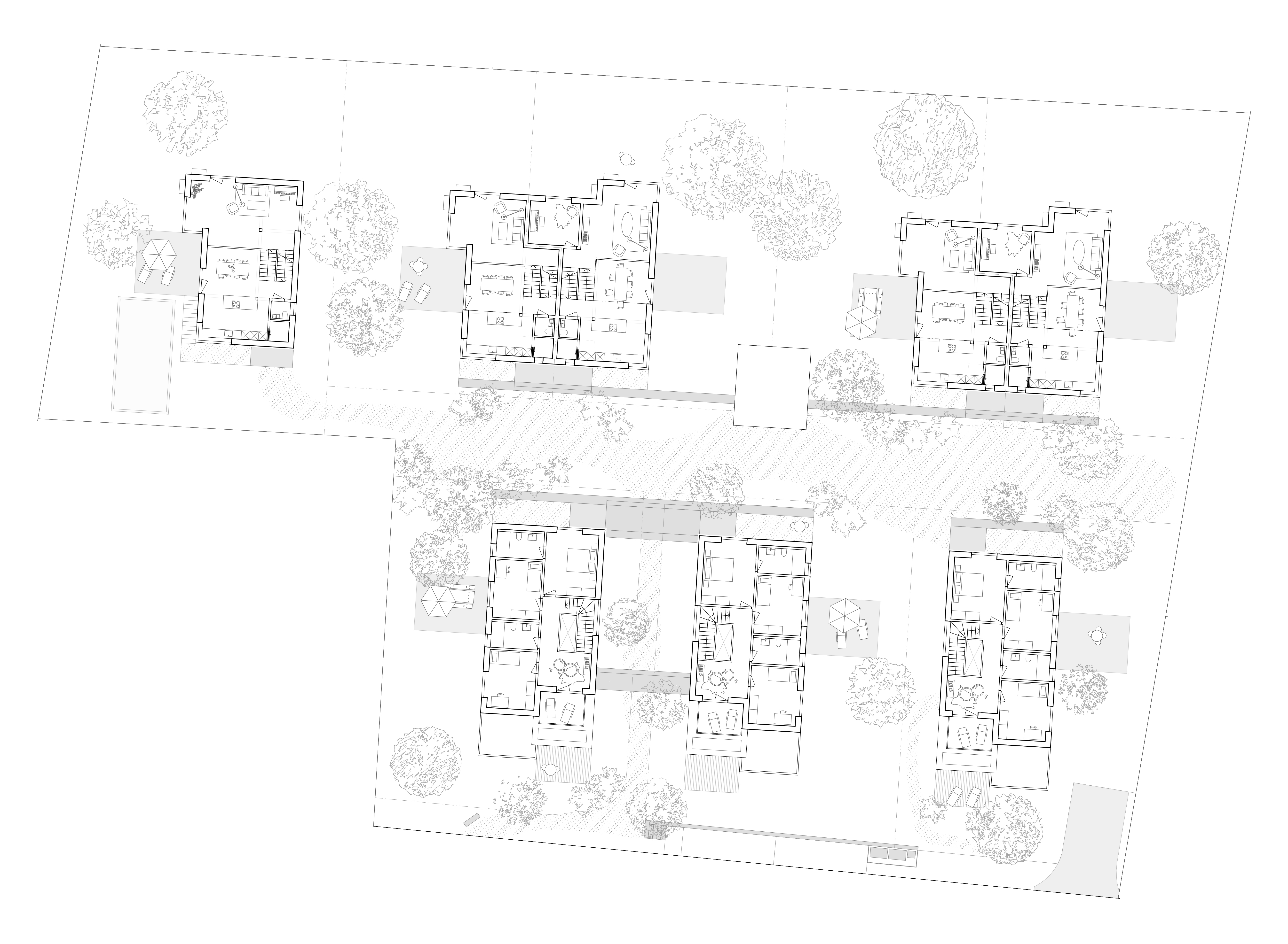
Wohnsiedlung Usserbärg, Beringen
Auftrag: Direktauftrag
Bauherrschaft: Quadraplan AG
Aufgabe: Siedlung mit 8 Einfamilienhäuser in 3 Typologien
Leistungen: Machbarkeitsstudie, Architekturleistungen 31-33
Bearbeitungszeit: 2021
Mitarbeit: Peter Prey, Kathrin Simmen
In Beringen entsteht auf dem Grundstück 'Usserbärg' ein differenziertes Wohnangebot.
Die acht Einfamilienhäuser unterschiedlicher Grösse und Eigenschaften nehmen die Körnung der Umgebung auf und schliessen die Lücke zwischen den angrenzenden Neubausiedlungen. Im Kontrast zur heterogenen Bebauung der Nachbarschaft bilden die Gebäude mit einer einheitlichen und zeitgemässen Architektursprache ein zusammengehöriges Ensemble, welches zu einen gemeinschaftlichen Grünraum in der Mitte der Bebauung adressiert ist.
Durch die präzise Setzung der Gebäudevolumen in der Topographie werden Aussenräume mit verschiedenen Qualitäten aufgespannt. Die umgebende Landschaft ist dank einer Tiefgarage grosszügig auf allen Seiten um die Häuser angelegt. Die organische Weggestaltung greift die bestehende Hanglage auf und weitet sich in der Mitte des Grundstücks zu einen zentralen Grünraum. Dieser kann flexibel bespielt werden und bildet mit einem Kiesbelag weiche Übergänge zu den individuellen Eingängen sowie mit Bepflanzung einen Sichtschutz zu den privaten Bereichen. Jede Parzelle erhält auf dem eigenen Grund mehrere Aussenflächen. Diese bieten durch die Einbettung in der Landschaft, ihre Zuordnung untereinander und der Anordnung im Grundriss differenzierte Aufenthaltsqualitäten mit unterschiedlichem Privatheitsgrad und Himmelsausrichtung.
Der Grundriss und die Wohnbereiche orientieren sich am Terrainverlauf. Einzelne Segmente sind zueinander höhenversetzt um das Gefälle am Hang aufzunehmen und die Räume optimal in die Landschaft einzubinden. So sind die Hauptaufenthaltsräume Kochen, Essen und Wohnen stets aneinander geordnet und haben durch das Split-Level eine direkte Verbindung nach Aussen. Hohe Decken, Sichtbezüge untereinander und grosszügige Verglasungen verleihen diesen Bereichen Aufenthaltsqualität und Wertigkeit.
Der Wohnraum ist variabel erweiterbar mit einem zuschaltbaren Zimmer, welches je nach individuellem Bedürfnis als abgeschlossenes Zimmer oder als zusätzliche Wohnfläche genutzt werden kann.
Die Zimmergrössen und der Grundrisszuschnitt ermöglichen eine gute und praktikable Möblierbarkeit.












