Betreutes Wohnen Suhrhard, Buchs AG

Aufgabe: 1. Preis Gesamtleistungswettbewerb mit Gross Generalunternehmung AG

Bauherrschaft: Alterszentrum Suhrhard AG

Aufgabe: 32 Kleinwohnungen für Betreutes Wohnen

Leistungen: Architekturleistungen 31-53, 58.5 % TL

Bearbeitungszeit: 2021 - 2024

Kosten: 16 Mio. (BKP 1-9)

Energielabel: Minergie-P, Eco

Mitarbeit: Alexia Alcaraz, Katharina Schielke, Peter Prey, David Häussler, Lucie Guggisberg, Roisin Purkis, Maja Buri, Rachel Bigler, Alex Walter, Kathrin Simmen

Kunst am Bau: Nic Hess

Fotografie: Studio Willen

Die Lage des Alterszentrums wird ortsbaulich als Insel verstanden. Ein fünfgeschossiger Baukörper ergänzt als gefiederter Punktbau in der vorhandenen, orthogonalen Ordnung den Bestand um den zentralen Gemeinschaftsplatz mit grüner Mitte und stärkt die Beziehung der drei Volumen sowie das Herzstück der Anlage. Die Adressierung ist am Gemeinschaftsplatz positioniert.

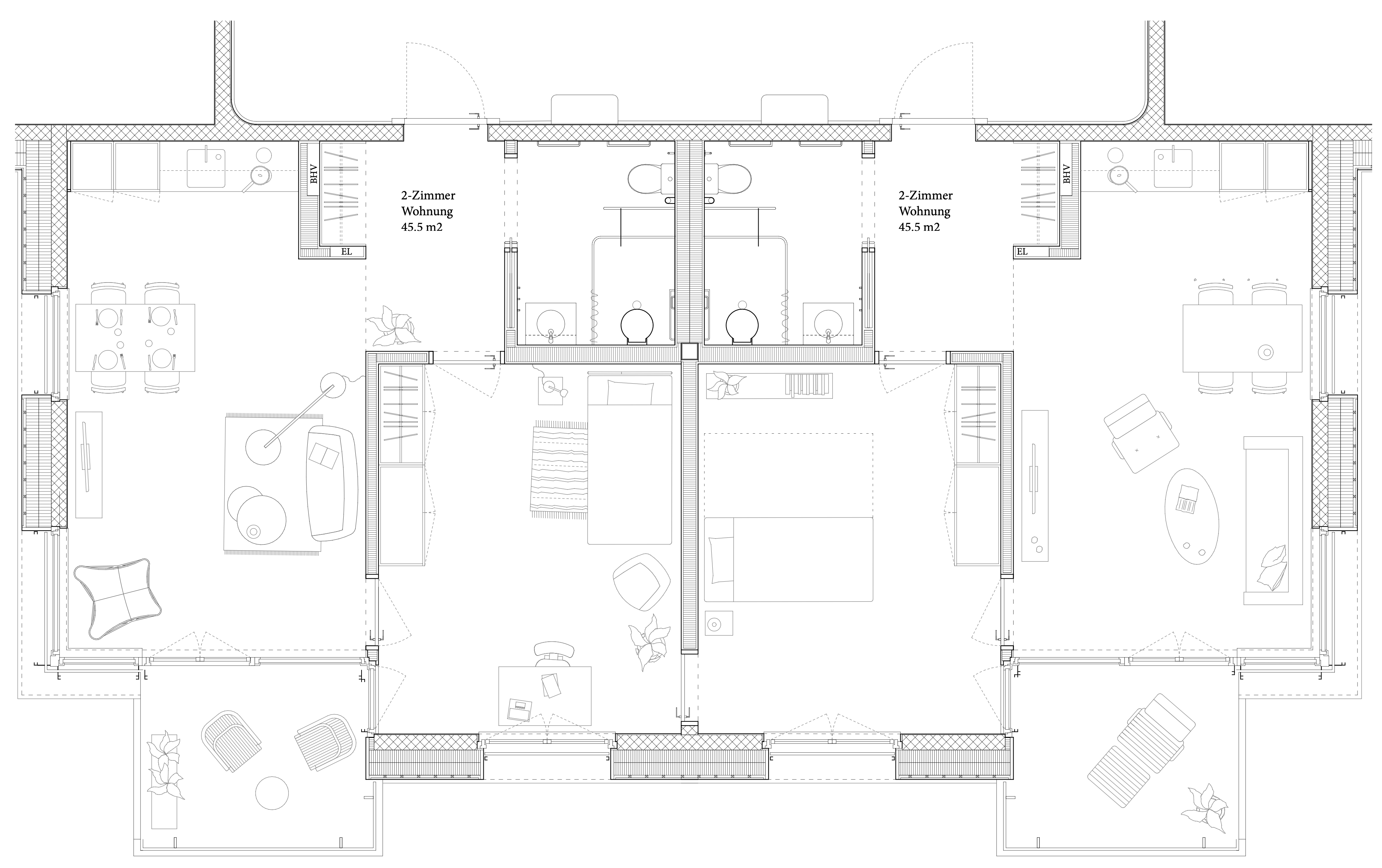
Zwischen den Bäumen lugt ein einladendes Haus hervor. Die innere Organisation weist eine dem Massstab des Gebäudes vereinfachte Verwandtschaft zum Alterszentrum auf. Um die zentrale Mitte, bestehend aus Oberlicht und Lift mit Nebennutzungen, ist ein Umgang angelegt: Im Erdgeschoss führt er zu vier erdgeschossigen Wohnungen und in den Essraum. In den Obergeschossen ist er auch Begegnungsort, der in einen Aufenthaltsraum weitet. Was der Gemeinschaftsplatz als Begegnungsort und grünes Herz für das Leben auf der Insel darstellt, bedeutet der Umgang mit dem Treffpunkt in kleinerem Massstab für die Bewohner im Haus.

Durch die volumetrische Ausformulierung des Baukörpers profitiert jede der 32 Wohnungen von zwei Fassadenseiten mit vielseitigen Lichtverhältnissen und abwechslungsreichen Ausblicken in die Parkanlage. Weil die Wohnungsgrössen knapp bemessen sind, ist der Grundriss so angelegt, dass die Raumabfolgen direkt ineinander übergehen und ein innerer Rundgang möglich ist.

Der Neubau ist ein Massivbau mit einer hinterlüfteten Holzfassade. Gestaltung und Farbigkeit schlagen im Ausdruck eine Brücke zu den Bestandesbauten, sind aber in Materialisierung und Plastizität eigenständig, um die Identität abzusetzen.

Projektbeschrieb PDF→