Wohnen Giessenbach, Ottikon b. Kemptthal

Auftrag: Wettbewerb

Bauherrschaft: privat

Aufgabe: 14 Alterswohnungen im Eigentumsstandard

Bearbeitungszeit: 2023

Kosten: 8.3 Mio. (BKP 1-5)

Mitarbeit: Alexia Alcaraz, Tobias Peteler, Kathrin Simmen

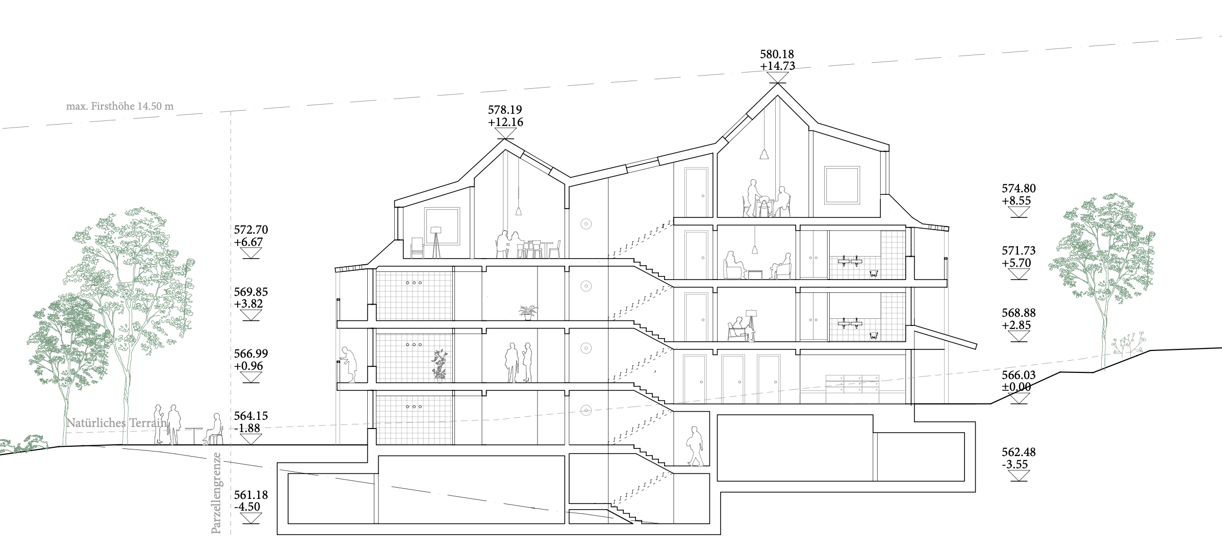
Ortsbauliche Einbettung

Ankommend auf der Landstrasse von Kempttal her befindet sich das Grundstück an prominenter Lage am Ortseingang zu Ottikon. Zwei mit einem Versatz zu einem Doppelhaus gefügte Volumina mit Satteldach formen einen Baukörper, der sich in Massstäblichkeit und Firstrichtung in die bestehende Bebauung eingliedert. Er bildet zusammen mit den Wohnbauten im Alpenblick, Talwis und dem Bauernhof an der Giessenbachstrasse eine Kulisse von giebelständigen Volumina, die sich wie in einem Theater dem geschwungenen Strassenverlauf entlang ausrichten. Der Auftakt ins bäuerlich geprägte Ortsbild erfährt durch den Neubau einen neuen Akzent; Menschen willkommen-heissend oder verabschiedend.
Mit dem Auto ankommend, fährt man ab der Talwisstrasse direkt in die Tiefgarage. Zu Fuss unterwegs führt ein flacher, geschwungener Weg vom Dorf her zum Haupteingang auf der Gebäudeostseite. Da unklar ist, ob ein asphaltierter Weg im Bereich des Gewässerabstandes angelegt werden darf, zweigt dieser ab der Vorfahrt des Nachbargrundstücks ab.

Freiraum

Vom Haupteingang gibt es die Möglichkeit, über einen Wiesenweg der gesäumt ist von Obstbäumen um das Haus zu spazieren, um zum Gemeinschaftsbereich zu gelangen, der auf der Gebäudesüdseite im Richtung Obstwiesen angelegt ist. Alternativ führt eine hausinterne diagonale Verbindung ebenso dort hin. Hier laden ein kleiner Brunnen, Hochbeete, Beerenstauden, Sitzgelegenheiten, eine Feuerschale und ein neuer, schatten-spendender Nussbaum anstelle einer festen Pergola zum Verweilen ein. Auf der freien Fläche in Richtung Ostwiesen gibt es weiteres Potential zum Gärtnern für aktive Bewohner.

Architektur

Der volumetrische Versatz ermöglicht allen vier Wohnungen, die pro Geschoss angeordnet sind, eine mindestens zweiseitige Orientierung, unterschiedliche Besonnung und Ausrichtung: Obstwiesen und Alpenblick, Hügellandschaft Richtung Winterberg, Ortskern von Ottikon oder kühlende, begrünte Hangkante. Das eingeführte Split-Level zwischen den Gebäudeteilen erlaubt es, dass sich diese an den Boden schmiegen und die Erdbewegungen gering sind. In der Fortführung der Bewegung der beiden Satteldächer ist je eine Raumschicht als Laube vorgelagert. Der architektonische Ausdruck des Hauses orientiert sich an den verputzten Wohnbauten, weshalb die Holzschalung der Fassade gelb-weisslich gehalten ist. Die roten Deckleisten und Brüstungsverkleidungen referenzieren Fachwerkelemente, die sich im Ort an den Wohntrakten der Bauernhäuser wieder finden.

Wohnen im Giessenbach

Ausgehend vom Hauseingang, wo sich die Briefkastenanlage in einem grosszügigen Windfang befindet, gelangt man am Trockenraum und dem Zugang zu den Bastelräumen vorbei ins Treppenhaus, welches im Schnitt 2/3-geschossig im Split-Level angelegt ist. Der zentrale Lift ist ausreichend gross, damit auch im Notfall eine Person liegend transportiert werden kann. Ältere Menschen verbringen viel Zeit zu Hause und identifizieren sich stark mit der eigenen Wohnung. Umso wichtiger ist es, dass sie viele Nutzungsmöglichkeiten und räumliche Grosszügigkeit bietet. Lebt man zu zweit, sollen mindestens zwei Zimmer als Schlafzimmer genutzt werden können. Die Nähe der Nasszelle zum Schlafzimmer ist für die Nacht umso wichtiger. Über diagonale Raumbezüge sind die unterschiedlichen Ausrichtungen der Wohnung jederzeit erfahrbar. Die Möglichkeit von verschiedenen Wegen innerhalb der Wohnung erlaubt es, unabhängig seinen Tätigkeiten nachzugehen und das Zu-Hause-Sein zu geniessen.
Wir würden empfehlen, die Wohnungen nach dem Label LEA Gold (Living Every Age) auszulegen und zu zertifizieren. Die Grundrisse im Mst. 1:100 zeigen verschiedene Möglichkeiten zur Ausgestaltung der Nasszellen und Küchengrössen. Diese wären im weiteren Projektierungsverlauf gemeinsam festzulegen.

Konstruktion und Materialisierung

Der Neubau ist in Mischbauweise angedacht: Vom UG bis ins EG als zweischaliger Massivbau mit einer Sichtbetonoberfläche für die über Terrain liegenden Wandflächen. Das eigentliche Haus ist in konstruktiver Holzbauweise mit durchgehenden Tragachsen und wirtschaftlichen Spannweiten konstruiert. Aus wirtschaftlichen Gründen sind die Geschossdecken als Holz-Beton-Verbunddecken angedacht. Die Fassade aus nicht tragenden Holzelementen ist mit einer vertikalen Holzschalung in formstabiler, sägeroher Fichte ist als Stülpschalung mit Nut und Kamm verkleidet. Zum technischen Witterungsschutz ist das Holz mit einem mineralischen Anstrich 3-fach werkseitig und 1-fach nach der Montage behandelt. Die Fenster in Holz-Metall sind mit elektrischen Stoffstoren verdunkelt. Der Sonnenschutz auf den Balkonen ist mit vertikalen, elektrischen Ausstellmarkisen gewährleistet. Der Balkonboden, der schwellenlos vom Innenraum übergeht, ist ein Holzrost aus druckimprägnierter Weisstanne. Die Dacheindeckung erfolgt in ortsüblichen Tonziegeln.